杭+新闻报道 日前,杭州云城又有新动作。其于5月顺利完成土地出让的杭州西站枢纽雨棚上盖开发项目,建筑方案正进行公示,项目的“面孔”进一步清晰。



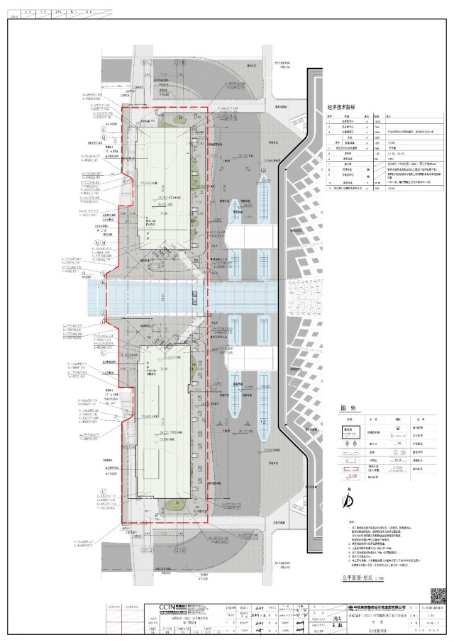
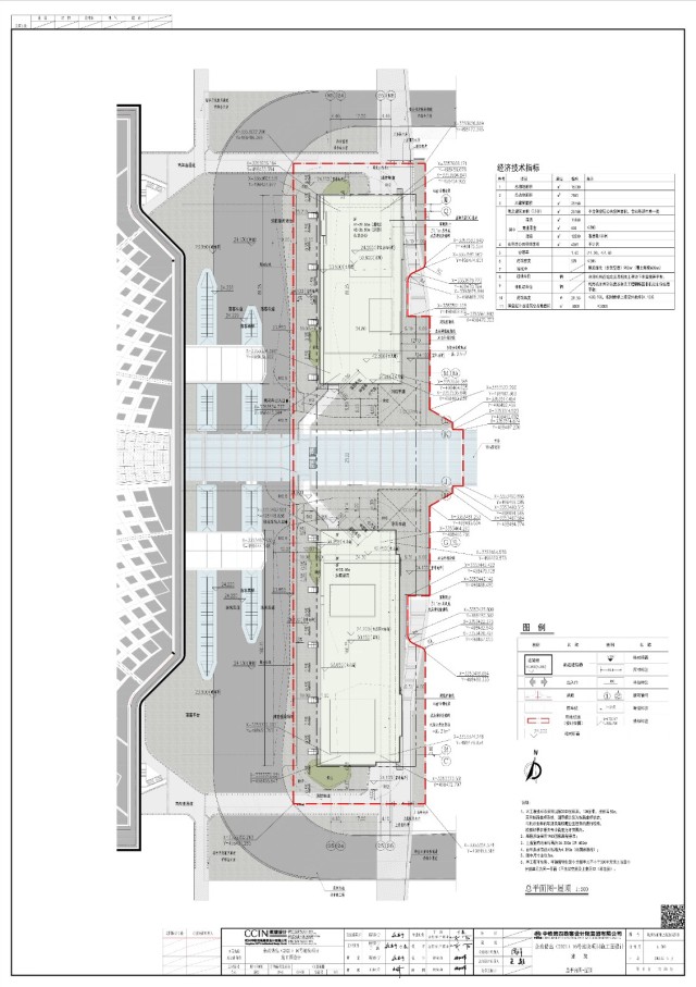
杭州西站枢纽雨棚上盖开发项目是浙江省政府和国铁集团实现“路地合作”的全国首个新建高铁站雨棚上盖商业开发项目,也是展现杭州西站枢纽站城融合开发理念,展示杭州城市形象的窗口示范项目。开发空间分别位于杭州西站枢纽东西落客平台站房雨棚上方四角,规划开发特色酒店、总部办公综合体。出让的西侧地块总用地面积约15532平方米,上海铁路房地产开发经营有限公司与杭州市西站枢纽开发有限公司联合体以总价13867万元竞得,成交楼面价5580元/平方米。东侧地块位总用地面积约15730平方米,上海铁路房地产开发经营有限公司与杭州市西站枢纽开发有限公司联合体以总价9985万元竞得,成交楼面价3967元/平方米。


本次公示的建筑方案中,项目西侧地块总建筑面积为24851平方米,其中商务类建筑面积约为23251平方米,商业零售类建筑面积约1600平方米。东侧地块总建筑面积为25168平方米,其中商务类建筑面积约为11868平方米,商业零售类建筑面积约为800平方米,所安排120间客房的酒店建筑面积约为12500平方米。后期深化方案时,相关专项设计也将视情况进行适当调整。
在建筑方案公示的同时,市民们也可以对规划项目展示方案建言献策。
